Łódź, Polesie, Karolew, ok. Al. Włókniarzy

Obiekt na wynajem

Opis nieruchomości


Wolnostojący budynek na działalność  gospodarczą np. SZKOŁA, PRZEDSZKOLE, BIURO, USŁUGI, firma KOMPUTEROWA, firma ARCHITEKTONICZNA,  itp.

BUDYNEK na osiedlu mieszkaniowym KAROLEW, blisko Dworca Kaliskiego i Al. Włókniarzy

Trzy kondygnacje: parter, I piętro i II piętro , na każdej kondygnacji po ok.100 m, razem 300 m. 

NAJEMCA 0% PROWIZJI !!!

PARKING dla NAJEMCÓW - 3 miejsca w cenie najmu



CENA : 9000 zł  + VAT + plus zużycie mediów

KAUCJA :  14 000 zł

- WOLNOSTOJĄCY budynek z parkingiem na osiedlu mieszkaniowym

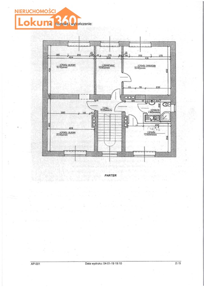
- ROZKŁAD POMIESZCZEŃ.

PARTER  -  103 m : 4 POKOJE, pomieszczenie socjalne - KUCHNIA, WC z prysznicem, hol i klata schodowa,

I PIĘTRO - 102,60 m  : 4 POKOJE, pomieszczenie socjalne - KUCHNIA, WC z prysznicem, hol i klata schodowa,

II PIĘTRO - 103,20 m :  sala konferencyjna,  2 pokoje, pomieszczenie socjalne - KUCHNIA, WC z prysznicem,

Wysokość pomieszczeń ok. 2,80 .


PARKING, w ramach czynszu najmu 3 miejsca


Możliwość montażu tablicy reklamowej na ogrodzeniu.

WYKOŃCZENIA i MEDIA :

- elektryczność, woda, kanalizacja, CO  i ciepła woda - SIEĆ MIEJSKA - własny węzeł cieplny
- OKNA PCV
- PODŁOGI - WYKŁADZINY i TERAKOTA


- ŚCIANY GŁADZIE GIPSOWE
- ŁAZIENKI I KUCHNIE  - glazury i terkoty
- klatka schodowa terakota


Bardzo blisko do tramwaju i autobusu.

300 m - BUDYNEK - DOM biurowy na ogrodzonej działce, wewnątrz osiedla mieszkaniowego, parking na Najemców, linie cyfrowe ISDN, alarm z monitoringiem.

DOBRY STANDARD. Blisko Dworca Kaliskiego i Al. Włókniarzy


PLANY W BIURZE.

- UWAGA!   Oferty prezentowane na naszych stronach nie stanowią oferty w rozumieniu Kodeksu Cywilnego, a są jedynie zaproszeniem do rokowań. Podane dane mają charakter wyłącznie informacyjny i mogą odbiegać od stanu faktycznego. Opis obiektu został sporządzony na podstawie informacji przekazanych przez Oferującego. Oferta może być już nieaktualna. Prosimy o telefon.

Nota prawna

Opis oferty zawarty na stronie internetowej sporządzany jest na podstawie oględzin nieruchomości oraz informacji uzyskanych od właściciela, może podlegać aktualizacji i nie stanowi oferty określonej w art. 66 i następnych K.C.

Szczegóły oferty

Symbol oferty PRO-BW-10942
Powierzchnia 300,00 m²
Powierzchnia działki 600 m²
Rodzaj obiektu biurowiec
Rodzaj budynku budynek wolnostojący
Kaucja zabezp. 14000
Standard
Opłaty wg liczników CO, prąd, woda
Liczba pięter w budynku 2
Stan lokalu odnowione
Okna PCV
Instalacje wymienione
Rodzaj lokalu wielopoziomowy
Woda ciepła - miejska
Dojazd asfalt
Otoczenie osiedle
Ogrzewanie miejskie
Własny parking tak
Podłogi wykładzina
Prąd w budynku
Kanalizacja miejska

Lokalizacja

Napisz do nas

Proszę wypełnić to pole
Proszę wypełnić to pole
Proszę wypełnić to pole
Proszę wypełnić to pole
Trwa wysyłanie...

Ta strona wykorzystuje pliki cookies w celach statystycznych oraz w celu dostosowania naszych serwisów do indywidualnych potrzeb klientów. Zmiany ustawień dotyczących plików cookie można dokonać w dowolnej chwili modyfikując ustawienia przeglądarki. Korzystanie z tej strony bez zmian ustawień dotyczących cookies oznacza, że będą one zapisane w pamięci urządzenia.

rozumiem