Komfortowy, kompletnie umeblowany i wyposażony, 2-poziomowy APARTAMENT typu loft w unikalnej inwestycji LOFTY "U Scheiblera", ogrodzony, strzeżony teren, miejsce parkingowe w GARAŻU wielostanowiskowym pod budynkiem z dużą KOMÓRKĄ lokatorską, portiernia przy wejściu.
SUPER ATRAKCYJNA CENA TYLKO 850 TYŚ. ZA CAŁOŚĆ !!!
UMOWA NA WYŁĄCZNOŚĆ - LOKAL PREZENTUJE POŚREDNIK !!!
- POMOŻEMY CI UZYSKAĆ KREDYT!
- ZORGANIZUJEMY OBSŁUGĘ NOTARIALNĄ !
Zapraszamy do wirtualnej wizyty (zdjęcia kamerą 360º umożliwiają obejrzenie pomieszczeń od wewnątrz).
- WOLNE: od zaraz, klucze w biurze,
- OPŁATY EKSPLOATACYJNE: opłata do wspólnoty 1650 zł, (w tym min. ogrzewanie, zaliczka na ciepłą i zimną wodę, wywóz śmieci, ochronę, utrzymanie części wspólnych, opłata za miejsce parkingowe i komórkę lokatorską) + prąd wg zużycia + ewentualnie telewizja kablowa/satelitarna + internet - w budynku Toya,
- MEDIA / OPOMIAROWANIE: wszystkie media miejskie, wszystkie media opomiarowane, także ogrzewanie - pomierniki na kaloryferach,
- OPIS POMIESZCZEŃ (umeblowanie / wyposażenie):
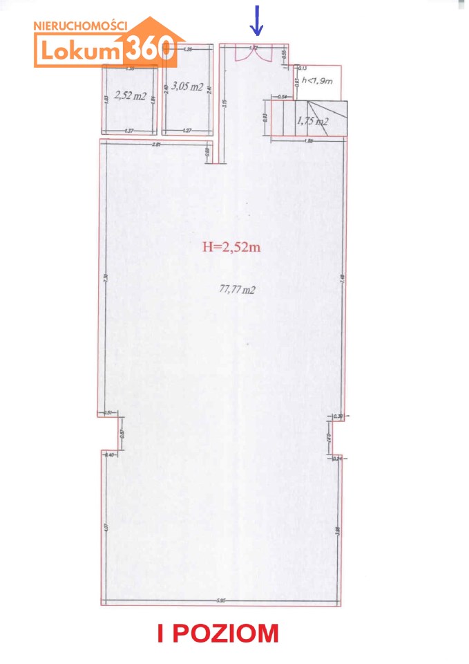
I poziom:
- SALON Z ANEKSEM KUCHENNYM: olbrzymi salon, który w najwyższym punkcie ma 6m wysokości, duże okna typu witryna bardzo dobrze doświetlające całą powierzchnię (dodatkowo okna dachowe), na podłodze parkiet, w salonie skórzany komplet wypoczynkowy (narożnik + ława skórzana), szezląg, szafka pod telewizory, telewizor 42", zestaw kina domowego,
- ANEKS KUCHENNY + JADALNIA: całość połączona z salonem, w jadalni stół z blatem szklanym + 4 krzesła, kuchnia z wyspą (indukcyjna, 4-palnikowa płyta grzewcza), kompletnie umeblowana i wyposażona, lodówka z zamrażarką, zmywarka, wbudowana kuchenka mikrofalowa i piekarnik, komplet garnków sztućców itp., duża szafa z 5 drzwiami przesuwnymi, odkurzacz, deska do prasowania, żelazko, zestaw do sprzątania (mop itp.,)
- HOL WEJŚCIOWY: schody na górę wyłożone płytami aluminiowymi,
- WC: oryginalne wykończenie, płyty aluminiowe na podłodze i na ścianach, umywalka, sedes typu Geberit,
II poziom: 2 sypialnie na antresoli, otwarte na ścianę z oknami, oddzielone barierkami, w głównej okna dachowe,
- SYPIALNIA I: na podłodze wykładzina, szafa typu Komandor z drzwiami przesuwnymi, okna dachowe od strony wschodniej (zainstalowane rolety przeciwsłoneczne), łóżko podwójne z 2 toaletkami, szezląg, 2 fotele, ława,
- SYPIALNIA II/ GABINET: na podłodze wykładzina, kanapa rozkładana, biurko, krzesło na kółkach,
- ŁAZIENKA Z WC: umywalka z lustrem z oświetleniem, sedes, prysznic z deszczownią, pralka,
- STANDARD WYKOŃCZEŃ: na podłodze w salonie parkiet, w holu wejściowym gres szkliwiony, w sypialniach na antresoli wykładziny, terakota w łazience na górze, w łazience na dołu oryginalne wykończenie z blachy aluminiowej, na ścianach gładzie gipsowe, okna dachowe drewniane, całość bardzo gustownie wykończona.
W CENIE KOMPLETNE UMEBLOWANIE I WYPOSAŻENIE !!!
- BUDYNEK: odrestaurowany i przerobiony na mieszkania budynek pofabryczny z XIX w. dawnej przędzalni Karola Scheiblera, całość oryginalnie przerobiona na luksusowy kompleks mieszkalny z windami i parkingiem wielostanowiskowym pod budynkiem, na terenie kompleksu 2 sklepy spożywcze - delikatesy Fabryczna i Żabka, 2 restauracje, 2 kawiarnie, pub, w budynku fryzjer, kosmetyczka, bardzo dobrze wyposażony gabinet stomatologiczny (też implanty),
- ROZKŁAD: tak,
- USYTUOWANIE W BUDYNKU: środkowe,
- BALKON / LOGGIA: brak,
- OKNA - oryginalne duże okna typu witryna / DRZWI: zewnętrzne antywłamaniowe,
- WYSTAWA OKIENNA: płd, okna dachowe w sypialniach od strony wschodniej i zachodniej,
- BEZPIECZEŃSTWO: cały teren jest chroniony - portiernia przy głównym wejściu do budynku, 12 obchodów na dobę części wspólnych i garażu wielostanowiskowego, domofony przy głównych drzwiach wejściowych do budynku, wszystkie pozostałe drzwi wejściowe do budynku zamknięte od zewnątrz - możliwe wyjście z wewnątrz,
- GARAŻ: miejsce w garażu wielostanowiskowym pod budynkiem, brama wjazdowa na pilota,
- KOMÓRKA LOKATORSKA: tak, pomieszczenie o pow. 10,52m w garażu wielostanowiskowym, za miejscem parkingowym przynależnym do mieszkania,
- UWAGA: miejsce parkingowe i komórka lokatorska uregulowane w osobnej księdze wieczystej - można sprzedać oddzielnie !!!
- UWAGA! Oferty prezentowane na naszych stronach nie stanowią oferty w rozumieniu Kodeksu Cywilnego, a są jedynie zaproszeniem do rokowań. Podane dane mają charakter wyłącznie informacyjny i mogą odbiegać od stanu faktycznego. Opis obiektu został sporządzony na podstawie informacji przekazanych przez Oferującego. Oferta może być już nieaktualna. Prosimy o telefon.



